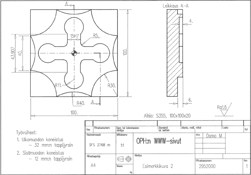
Esimerkkikuva 2

Materiaalin sisällysluetteloon